Quality products with
the best level of efficiency according
to petroleum industry standards

Retail Fueling Product

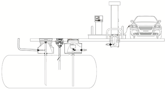
Integrated fuel delivery system solutions both above and below ground to ensure efficiency, safety and environmental friendliness.

Above Ground Products

Below Ground Products